
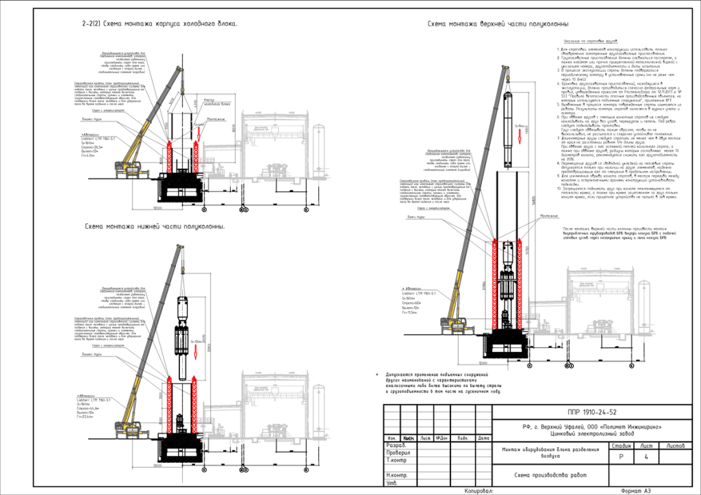
Мы реализовали разработку ППР на монтаж оборудования блока разделения воздуха в Челябинской обл., г. Верхний Уфалей Цинковый электролизный завод.
Проектом предусмотрены работы по монтажу основного оборудования блока, металлических конструкций, а так же инженерных систем трубопроводной обвязки.

