Реализованные проекты

Мы выполнили более 300 различных проектов. Здесь представлены иллюстрации и краткое описание некоторых из них.

ППР на монтаж оборудования на заводе Вим Билль Данн
ППР на монтаж технологического оборудования на заводе "Вим Билль Данн"
ППР на монтаж сендвич панелей Куранахский ЗИФ
Проект производства работ на монтаж сендвич панелей промышленного здания
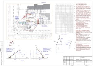
ППР на работы по реконструкции ТЭЦ
ППР на участок работ по реконструкции ТЭЦ-1 в Челябинске
Разработка опорно-поворотной площадки механизма конусной дробилки
ППР на капитальный ремонт дома в Москве
ППР на работы по капитальному ремонту жилого дома в г. Москва
ППРК на монтаж сэндвич-панелей сервиса грузовых автомобилей КАМАЗ
ППР на монтаж сендвич панелей здания СТО для автомобилей Камаз в Московской области
Разработка технологических карт на производство строительных работ
ППР на работы по монтажу стеллажных систем АО "Трубодеталь"
ППР на строительство жилых домов в г. Керчь
Проект производства работ на строительство жилого комплекса из 4-х домов в г. Керчь республики Крым
ППР на ремонт опорной рамы экскаватора ЭШ 15-90
Проект производства работ на ремонт опорной рамы карьерного экскаватора ЭШ 15-90
Чертежи стальной роликовой опоры. Реверс-инжиниринг корпуса роликовой опоры рольганга.
Стальной корпус роликовой опоры подающего рольганга
Конструкторская документация, чертежи ролик для рольганга
Разработка конструкции нового ролика для подающего рольганга
Шнековый вал. Конструкторская документация. Сборочный чертеж.
Разработка комплекта рабочей документации для изготовления шнекового вала с подпором
Разработка проекта для изготовления карданного вала по заданным параметрам
Чертежи литой крышки дробилки. Конструкторская разработка. Реверс-инжиниринг.
Разработка комплекта рабочей документации для изготовления литой крышки конусной дробилки КМД-1750Т
Комплект конструкторской документации раскоса стрелы карьерного экскаватора ЭШ 20-70
Комплект рабочей документации для изготовления новых деталей стрелы шагающего экскаватора ЭШ 20-70
ППР на монтаж светофоров и стоек дорожных знаков
Проект на монтаж светофорных объектов и стоек дорожных знаков в Воронеже
Мы используем cookie-файлы для наилучшего представления нашего сайта.
Понятно
Отказаться
Политика конфиденциальности