Выполняем профессиональную разработку проектов производства работ. ППР включает следующие обязательные разделы (в соответствии с СП 48.13330.2019 и ВСН 193‑81 «Инструкция по разработке проектов производства работ по монтажу строительных конструкций»):
1. Титульный лист и пояснительная записка в ППР
Пример титульного листа и содержания пояснительной записки в ППР
Пояснительная записка является обязательной составной частью проекта производства работ (ППР) и содержит развёрнутое обоснование принятых организационно‑технологических решений, необходимых для качественного и безопасного выполнения строительно‑монтажных работ на объекте.
2. График производства работ
Пример календарного плана графика производства работ
График производства работ (ГПР) является ключевым элементом проекта производства работ (ППР). Он отражает порядок и сроки выполнения различных строительных процессов, обеспечивая координацию действий участников строительства и оптимальное распределение ресурсов.
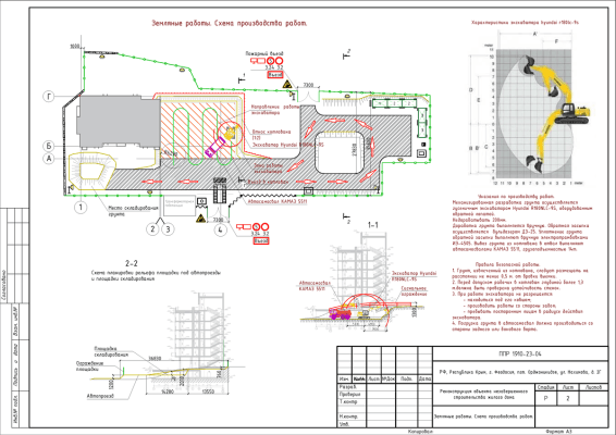
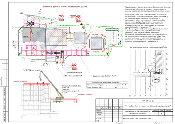
3. Стройгенплан в ППР: как выглядит и что содержит
Пример стройгенплана и схем производства работ
Стройгенплан является одним из ключевых документов, входящих в состав Проекта Производства Работ (ППР). Стройгенплан представляет собой графическое изображение территории стройплощадки, на которой размещаются временные здания и сооружения, инженерные сети, транспортные пути и другие объекты, обеспечивающие строительство объекта.
4. Технологические карты
Пример технологических карт
Технологические карты являются неотъемлемой частью проекта производства работ (ППР). Они представляют собой детализированные инструкции по выполнению отдельных видов строительных процессов, включающие последовательность операций, методы контроля качества, требования техники безопасности и охраны труда, а также необходимые инструменты и оборудование.
5. Мероприятия по охране труда
Охрана труда является важной составляющей любого строительного проекта и обязательно должна учитываться в проекте производства работ (ППР). Мероприятия по охране труда направлены на обеспечение безопасности сотрудников, предотвращение несчастных случаев и профессиональных заболеваний. Рассмотрим основные мероприятия, которые необходимо включить в ППР.
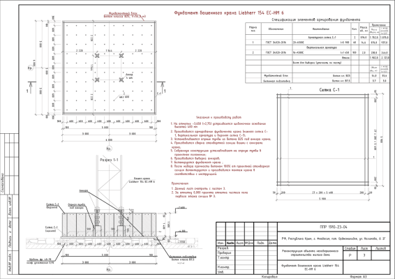
6. Рабочие чертежи временных сооружений и монтажных приспособлений
Пример рабочей документации фундамента башенного крана
Чертежи временных сооружений создаются для точного определения конфигурации и размеров возводимых временных конструкций, таких как строительные леса, опалубка, заборы, бытовые городки и другие подобные объекты. Их основная задача — обеспечить безопасность и удобство работы на строительной площадке, организовать пространство и облегчить ведение строительных работ.
7. Схемы строповки в ППР
Пример схем строповки
Схемы строповки — это важная составляющая проекта производства работ (ППР), особенно при выполнении монтажных и демонтажных работ с применением грузоподъемных механизмов. Эти схемы определяют порядок закрепления груза к крюку крана или другому подъёмному оборудованию для безопасной транспортировки и установки элементов конструкции.
Нормативные документы для разработки ППР которыми мы руководствуемся
При разработке ППР мы руководствуемся действующими строительными нормами и правилами Российской Федерации:
- Приказ 861/пр от 24.12.2019 г. об утверждении СП 48.13330.2019 «СНиП 12-01-2004 Организация строительства»;
- ВСН 193-81 — «Инструкция по разработке проектов производства работ по монтажу строительных конструкций»;
- СП 48.13330.2019 — «Организация строительства» (актуализированный СНиП 12-01-2004);
- МДС 12-81.2007 Методические рекомендации по разработке и оформлению проекта организации строительства и проекта производства работ;
- Приказ от 26 ноября 2020 года № 461 Федеральной службы по экологическому, технологическому и атомному надзору (Ростехнадзор) Об утверждении ФНиП в области промышленной безопасности «Правила безопасности опасных производственных объектов, на которых используются подъемные сооружения».
Все решения в проекте производства работ выполняются строго в соответствии с этими нормативами и проходят внутреннюю техническую проверку.











































