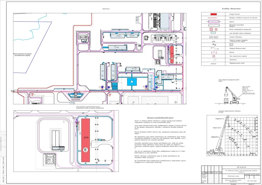
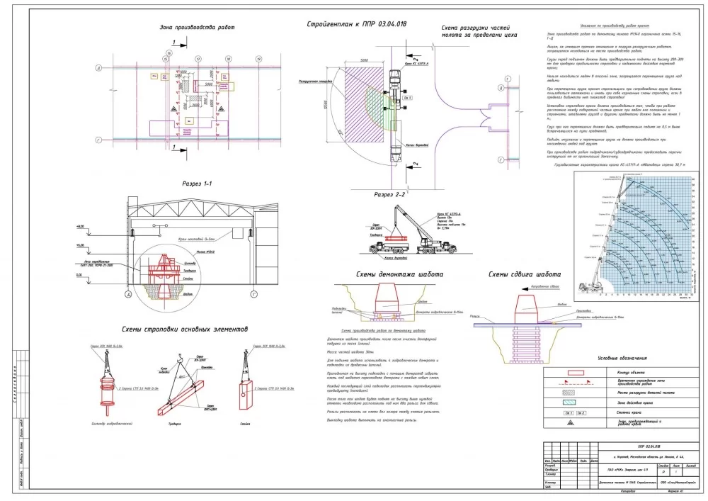
В качестве иллюстрации представлен один лист графической части проекта
ППР на строительство очистных сооружений фабрики производства одежды "Пеплос" в г. Челябинск
# Земляные работы, Инженерные сети, Монтаж оборудования, Работы на высоте
Похожие проекты
У вас похожая задача? Поможем решить!
Сэкономьте время и ресурсы — наши решения сокращают затраты на 30 %! Оставьте заявку для расчёта вашего проекта.


























