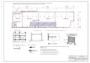
Выполнена разработка ППР на монтаж газопровода. Проект разработан на работы по монтажу и сварке газопровода низкого давления в промышленном здании индустриального парка «Станкомаш» в г. Челябинск.
В проекте приведена технология монтажа и сварочных работ газопровода и системы крепления. Проектом учтены условия работ в существующем здании с учетом действующего производства.
Также в проекте разработан комплекс мероприятий по обеспечению безопасного производства работ на высоте.








