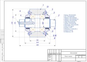
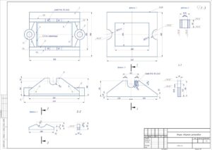
Выполнена разработка комплекта документации на выполнение работ по изготовлению деталей для ремонта шагающего экскаватора ЭШ 20-70.
Разработка произведена по образцам деталей (реверс-инжиниринг). Конструктивно детали оптимизированы под технологию изготовления имеющуюся у заказчика.
У деталей улучшены эксплуатационные характеристики путем применения более износостойких материалов и высокой точности механической обработки.








