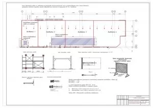
В качестве иллюстрации представлен один лист графической части проекта
Проект на ремонт кровли двухэтажного жилого дома в г. Фрязино, Московской области
# Кровельные работы, Работы на высоте
У вас похожая задача? Поможем решить!
Сэкономьте время и ресурсы — наши решения сокращают затраты на 30 %! Оставьте заявку для расчёта вашего проекта.



























